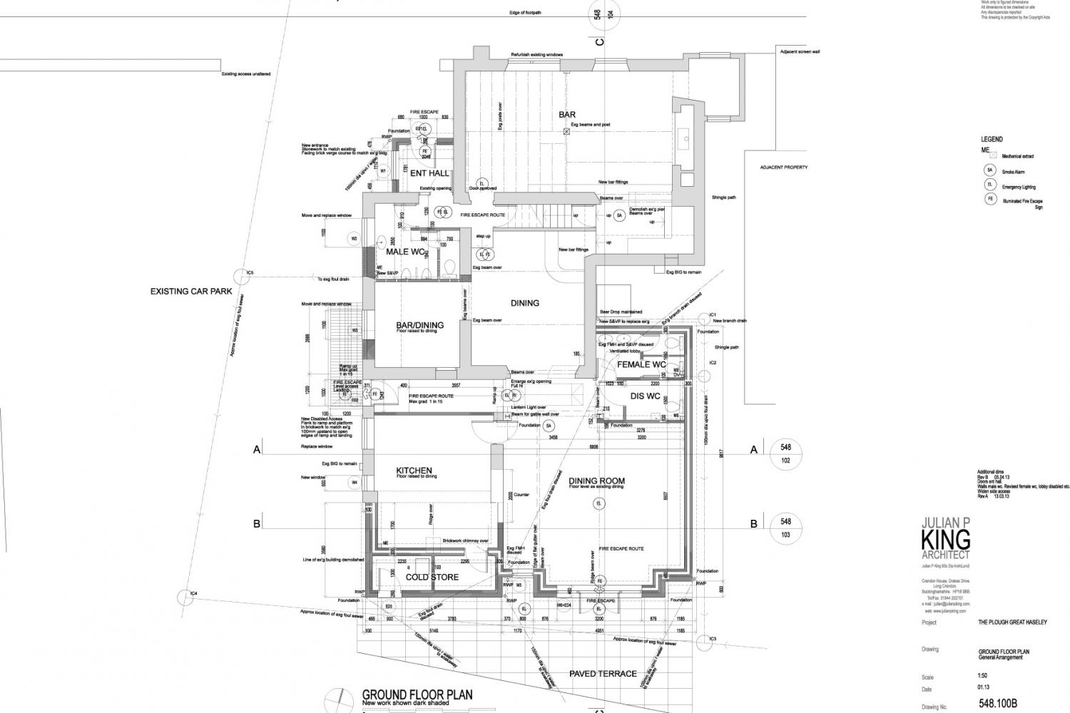
The Plough Public House Great Haseley

The project involves alteration and a dining room extension to the existing listed building.  The pub will become a venue for diners whilst retaining it’s appeal to local villagers.

Completion is expected in the Autumn 2013.